
素雅、精致、高級...果然,輕奢風配大平層的level就是不一樣!

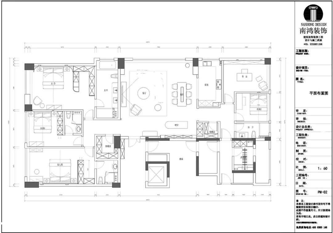
項目信息 地址:東潮府 城市:中國 杭州 戶型:平層 面積:300㎡ 風格:現代輕奢 設計施工:浙江南鴻裝飾 優質的家居環境設計,不止在于合適的資源配置,更在于用細膩的質感回應居住者個性的生活方式及獨到的美學品味。 本案戶型方正,南北通透,整體格局的變動不大。裝飾元素設計上我們更多的是用輕奢感的石材和金屬、玻璃等材質搭配,還有高光染色木皮、黑檀木門的選擇,展現俊雅時尚、高端大氣的精致格調。 Layout Design 戶型方案 Living Room 客廳 客餐廳同處一個區域,顯露大平層的氣度。設計以大開大合的手法,沖破了感知的界限,打造自由式生活動線。 空間以素雅的灰白色作主基調,陽臺納入室內并搭配夢幻簾,充足的光感為空間放大了明朗奢華的氣度。 客廳使用淺色系的軟裝,造型穩重大方。頂面做了“雙眼皮”疊級吊頂,有層次感的同時又不會影響層高,雙環形燈飾進一步增強區域光源和格調。 電視背景墻做嵌套型收納設計,深淺色組合豐富美觀度,底部則留空制造懸浮視覺效果。 夢幻簾白凈的垂墜感營造出浪漫氛圍,搭配綠植和頂地拉伸出的燈帶造型,細膩的情境設計傳達著美麗的生活愿想。 Dining Room 餐廳 餐廳毗鄰廚房,寬長的大理石餐桌搭配輕奢風餐椅,還有趣味感的吊燈,打造出別致的用餐情調。 另一側延伸出島臺休閑區,拓展了公區的橫向視覺并增加操作與儲物面積,圓弧的臺面處理和高光的柜面,裹挾著讓人難以抗拒的高級質感。 L型的酒柜簡約而不失典雅,通透、輕奢的視感氛圍配合燈光,傾情詮釋著高品質的現代都會生活。 Kitchen 廚房 淺灰色的櫥柜為廚房帶來干凈利落的爽朗感,內嵌的廚電設備,將功能與顏值完美結合。 Master Room 主臥 主臥的氛圍偏于穩重柔和,米灰的床品與硬包背景帶來素雅簡潔的格調,適當的線條分割,也為空間帶來了獨特的韻律。 原書房部分改造為步入式衣帽間,功能上更加符合屋主需求,柜面的弧形處理也讓區域轉換變得流暢生動。 Children's Room 兒童房 女孩房透著活力的小清新,墻裙設計與灰橘色漆的組合為空間帶來了豐盈與柔美之感,書桌區以拱形造型突出,演繹出妙趣橫生。 Study 書房 擺脫都市喧囂,讓思想得到寧靜的解放。書房設計延續高級素雅的氛圍,讓人與自我的對話在此處醞釀,從心靈深處發掘生活的無限美好。




















上一篇:去風格化客廳,沒有邊界感才更自由
免費
免費申請戶型規劃
專屬設計師免費1對1全程服務
已經有3782人申請
24小時免費咨詢電話
400-8800-618
你家預算
108080元