
【工大誠園】溫柔澄凈,在秋色中盛放的家!

某個早晨或午后, 曾呼風喚雨的云層散去, 溫柔澄凈的天空, 是秋天幸福的顏色。 by 赫爾曼·黑塞
時間與光影交匯,家在此自由生長。
本案的設計靈感,設計師表示,是來源于生活。業主期望在都市中辟一處凈室,既能安放身心又可品茶會友、寄寓閑情,設計遂將溫度與自然融入這所起居空間,呈上樸實無華、溫潤雅致的家景。

空間在風格造型上一目了然,相伴秋日的溫柔和明媚,使用了咖系奠定基調,佐入胡桃木飾面、黑色質材并點綴中古風和侘寂風軟裝,詮釋獨特的自然系美居。
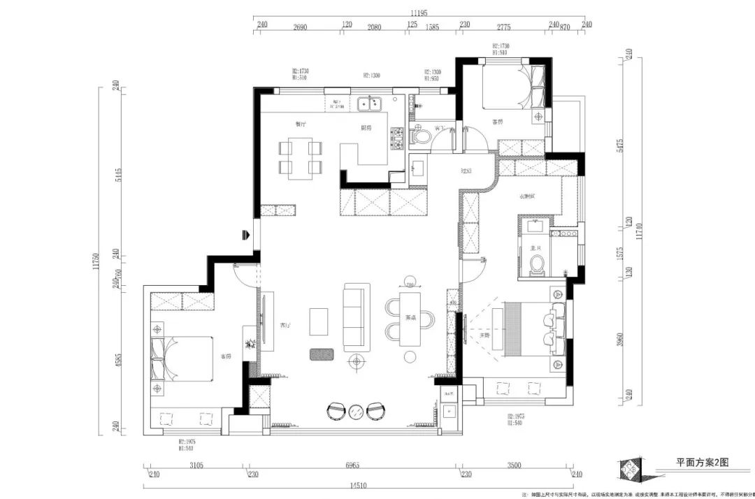
本案戶型改造重心放在了生活空間的優化上,公區域將客廳與茶室合二為一,伴隨大面窗攬入室外美景,人與自然和諧共生,豐盛一室美好體驗。主臥與小房間打通,規劃衣帽間和主衛,休憩空間功能的全面考量,對于提升業主居住體驗來說,同樣關鍵。


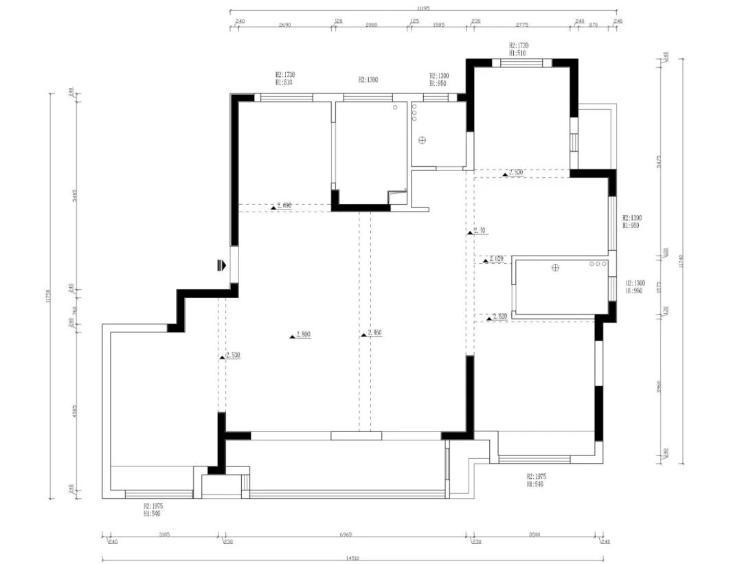
原始結構

平面方案
CASE APPRECIATION
▽
客廳


設計師利用自然光完善橫廳格局,透過木地板串聯動線,在開放式的輪廓下定義各區域功能,相伴窗景展開生活的各種姿態。

拉開窗簾,陽光便透過窗戶熱情涌入,投射在地面形成靈動的光影。窗外美景映入眼簾,自然綠意在室內流淌,人與自然也由此和諧共生。

低飽和度的空間中使用了意式極簡豆腐塊沙發,棉麻質地與用色進一步拉近空間與自然的距離。搭配純色手工質感地毯、實木和不銹鋼混搭的個性茶幾與BOBO羊羔絨單椅,讓家充滿了復古的浪漫情調與自然的明媚氣息。
客臥房門以隱形門的形式融入在電視背景墻中,利落整體視感;陽臺靠近茶室一側打造了家政洗衣區,靜寓閑情之時,更能舒享便捷家居。



簡潔的留白、樸拙的質材、明亮的光感,各處細膩的落筆,生動傳遞著輕松悠閑的情緒和氛圍,空間以此回應著居者內心對純粹寧靜生活的祈盼。
餐廳

餐廳位于入戶另一側,鞋柜是鞋履必要的儲放地,亦是兩塊不同功能區的分界。客餐廚之間無阻的流暢動線,串起一家人親密的互動時光。

法式復古黑色餐桌與中古奶油白色吊燈可謂相得益彰,搭襯出溫馨又浪漫的情調。餐桌椅緊鄰餐邊柜,空間在美麗之余更有實用格調。
茶室


自由通透的視野貫穿整個公領域,茶區主用日系侘寂風家具裝點,調和出自然韻味與簡凈氣質,帶來靜謐與閑適之感。


家不是既定的模板,而是基于居者的生活方式和情感記憶創造出的獨一無二的空間。
本案依據業主的個性喜好,將茶區融入公區域,自由開放的布局順暢日常行走路徑,亦能開闊心境。黑色茶桌搭配藤編椅和圓球燈,自然氣息與人文氣場平衡交融,將簡約的禪意娓娓道來。
廚房

廚房同樣素凈大方,奶油色工藝吊柜和胡桃木地柜搭配,墻面鋪奶白色柔光磚,低飽和的色調更能放大空間。U型結構在外側延伸出吧臺,與用餐區形成緊密連接,日常也可做備餐區和輕食區,實用大增。
免費
免費申請戶型規劃
專屬設計師免費1對1全程服務
已經有3782人申請
24小時免費咨詢電話
400-8800-618
你家預算
108080元