
2018年四月設計師會議
4月10日,南鴻裝飾領導和各分公司百名設計師在浙工大召開了四月設計師交流會議。各分公司設計師展現自己的作品和理念,共同探討什么樣的設計才是客戶需要的設計。
所謂好的設計,就是最大化滿足客戶的居住需求,關注到居住者的生活習慣與空間關系,與每件家具、物品之間的聯系,更關注居住者內心的感受。
臨平分公司丨君臨天峯


設計三部丨圣奧領寓


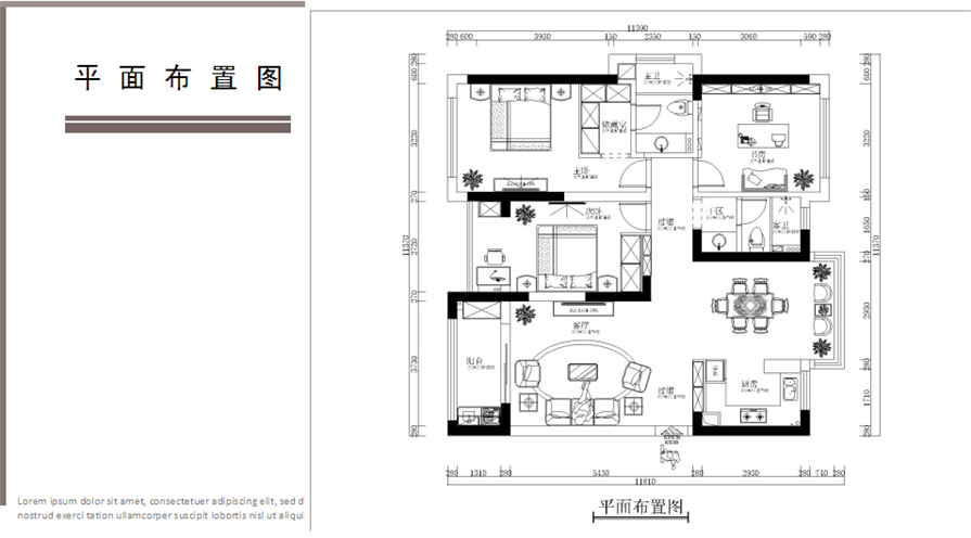
科技城分公司丨雍景灣


設計二部丨三里新城


設計四部丨陽光郡


城西分公司丨蘭亭國際


城北分公司丨協安紫郡


濱江分公司丨安吉玫瑰園

城東分公司丨天都城


設計一部丨河濱公寓


上一篇:2018年五月設計師會議
下一篇:2018年三月設計師會議
免費
免費申請戶型規劃
專屬設計師免費1對1全程服務
已經有3782人申請
24小時免費咨詢電話
400-8800-618
你家預算
108080元