
40方老破小大改造,來場華麗的“逆襲”吧!

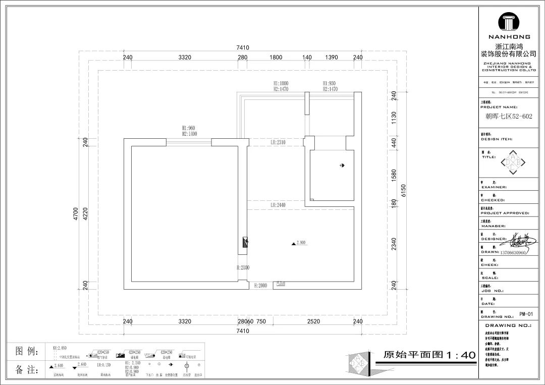
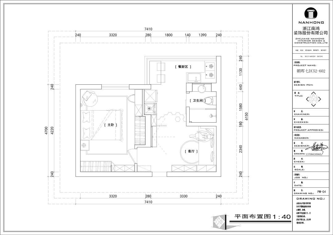
項目信息 / 地址:朝暉七區 城市:中國 杭州 戶型:一室一廳 面積:40㎡ 風格:現代混搭 設計施工:浙江南鴻裝飾 本案是杭州朝暉七區一套老破小的項目改造。業主胡女士是60后,但心態一直都很年輕,這點從屋子最終的落地效果就能看出——簡約、時尚又充滿趣味。房子是40方的小戶型,不過業主日常是單人居住,所以使用空間也是完全足夠的。 我們在風格上做了小混搭,偏向北歐,又有點復古的味道,家里不同區域盡量去營造不一樣的視覺效果來保證新鮮感。隨性自在的生活總要有一個愜意的家居空間來配合,當居住者被所有TA喜愛的事物包圍時,便自然能感受到生活的美妙滋味~ ①原始戶型的廚房和衛生間占用了整個陽臺,導致陽臺外無法晾曬衣服,只能放在臥室窗臺外,希望這方面能得到改善。 ②業主對做飯的需求不是很大,廚房想盡可能縮小,但是要保證有基礎的配置,同理衛生間。 ③鞋衣物量比較大,儲物空間再多一些。 ④想要有一個小門廳。 #戶型改造分析 優點:房子雖然只有40方,但一室一廳的格局讓每塊區域不會那么局促。且厚墻只有一處,可改動空間較大。 缺點:進門直視廚房,煙機灶具的位置也占用了陽臺側面的窗戶。 原主臥門洞向內推進,敲去部分墻體并保留一部分老墻,與新砌墻體、門洞形成S墻,功能區彼此內嵌,向外形成了門廳、電視墻、食品柜、雜物柜,向內則可以多做一組衣柜與梳妝臺。 衛生間門洞改向,合并餐廚區,使陽臺得到妥善利用。 ↑ 改造前后 ↓ 經過墻體結構的改動,玄關得以留出鞋柜的收納空間,再通過軟裝的布置搭建出了一個小門廳,增加進出門的儀式感。 通往內臥的過道特意做了弧形來弱化空間直角,柔和的弧度會比直線更加耐看。 客廳選擇豆沙紅的背景色,頂部嵌入隱藏光源顯出精致。雙人位灰色沙發延伸入相鄰的定制柜中,空出的部分用邊幾補齊,不留任何死角。整體軟裝都走北歐風那種簡約隨性的調子。 ↑ 改造前后 ↓ 小客廳通往餐廚區的過道,白色的機能柜嵌入冰箱、洗衣機,完成對空間的高效利用與家務動線的縮減。 居家生活的品質感絕不是依靠各種材質的堆砌,而是借由適宜的光線、家居元素以及經過慎密計算的生活動線,方能創造出方便實用又美觀大氣的生活環境。 客廳、餐廳、廚房、衛浴幾個不同的功能區都在幾步路的氛圍內,彼此交融。地面鋪貼時尚的花磚,非常有活力。窗臺的百葉簾增強光影的可塑性,四季四時的變化,朝夕可見。 廚房保留了一個人開火的最小空間,灰色櫥柜搭配淺色瓷磚,干凈明朗。立面的物件收納非常齊備,大大節省桌面空間,方便保持廚房的日常整潔。 ↑ 改造前后 ↓ 臥室的兩面都打好柜子滿足儲物需求,簡約凝練的設計,質樸自然的元素,為空間注入安穩沉靜的力量。窗臺一側的區域刷青草綠的漆面,畫風自帶清新愜意。 木色的床具床頭柜讓人心生安定,床尾布置化妝區,展示柜同樣嵌入隱藏光源,營造一種現代的科技感。 ↑ 改造前后 ↓ 衛生間的元素多而不亂,細節間盡顯設計的人性化,比如可抽拉的水龍頭,懸浮式臺盆,馬桶后方的擱板等等,啞光質地灰磚更有質感,地面的花磚則與外部空間相呼應。 “風軟花香,泡一杯香茗,放上舒緩的音樂,慵懶地坐在地毯上享受午后時光。”——這是她心中最理想的生活狀態。 業主胡女士與我們的設計師跨越年齡的界限,在思想觀念上的不謀而合,也讓本次合作變得非常順利與愉悅。人生忽如寄,莫辜負茶、湯和好天氣,愿她未來的每一個平凡日子都是閃閃發光!
























免費
免費申請戶型規劃
專屬設計師免費1對1全程服務
已經有3782人申請
24小時免費咨詢電話
400-8800-618
你家預算
108080元